
精选案例
设计团队
施工特色
我要装修
附近工地
品牌故事

发布时间:2018-08-21 浏览量:次
想必装修过的人都知道,量房看设计图是必不可少的,装修业主可以通过图纸来了解今后家大致的模样,是否符合心目中的理想蓝图。
但对于装修小白来说,各种图纸展示在他们面前,或许是呈一个懵逼的状态,最厉害的也只能看出一个大概吧。其实不一样的图纸,直观性不一样,表现的重点也是不同的,小编带你来看看不同的图纸究竟有什么作用吧。
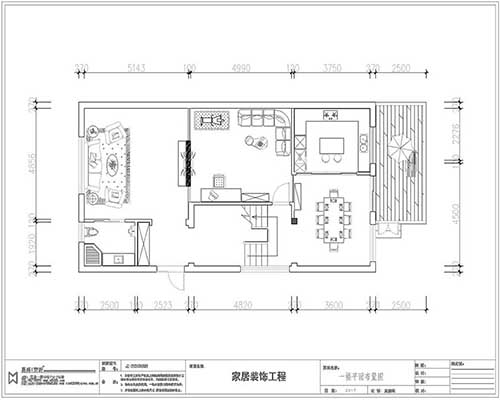
1、平面图纸
平面图纸是设计时最常见的,一套完整的平面设计图纸应该有:平面测量图、改建平面图、家具布置图、天花板布置图、地面材料划格分布图、强电平面图、配电平面图、开关平面图、照明平面图、给水平面图、固定装饰定位图等。

图1.平面图纸
优点:装修业主可以通过图纸了解房子的原始、改建和今后的格局,也包括一些细节部分的设计。例如背景墙、玄关等装饰今后的大体样子,其中都有具体的数据表现,几乎没有误差。
缺陷:对于平面图纸本身来说并没有什么缺陷,关键在于绘制图纸的人。有些不负责的设计师会漏画一些图纸。平面图纸必须精确规范,这是施工的保障,应该严格把关。
2、空间走向图
空间走向图是包含在平面设计图纸内的,也是让装修业主了解今后室内效果的图纸之一。通过图纸上标注的箭头方向,引导装修业主了解各个空间的走向趋势。
优点:空间走向图是根据人体工程学合理的设计出来的,有了走向图上的箭头标示,能够帮助装修者更好的了解图纸的空间布置格局。
缺陷:对于一般房型不大的家庭来说,走向图不是很实用,是可有可无的,其技术含量也不高。
3、手绘效果图
手绘效果图是比较传统的表现手法,也是体现设计师功底的一个主要手段。在设计师和装修业主沟通时,设计师可以通过手绘效果图的方便,一边和装修业主交流,一边将其想法用手绘的方式表达出来。

图2.手绘图
优点:手绘效果图是设计师和装修业主沟通时表达设计最好、最快的一个途径。手绘效果图的快速成相是很多电脑效果图无法替代的。
缺陷:手绘效果图只能说明大概的色彩、空间感,但尺寸并不精确。可能会与将来的实际效果有出入。
4、电脑效果图
电脑效果图可以做得十分逼真,帮助装修业主直观的看到自己家未来的装修效果。不仅可以看到布局,还可以看到具体的材质。
优点:电脑效果图制作慢,但是容易出效果,可以以非常直观的方式展现出整个空间的效果。有些公司出的效果图还可以模拟出照片的感觉来。
缺陷:由于电脑效果图更改不是很方便,一般都作为最终的效果出图。有一点需要注意,电脑中可以将光影渲染得很特别氛围很浓烈,而实际装修时一般不能达到这个效果。
编辑留言
装修设计图纸是在装修是必不可少的,每种图纸都有优点和缺点。图纸就是为了让你更好的了解自己的家未来的样子。
易路荣昕沪上老牌企业,自2007年成立以来,始终坚持固定工人做装修,施工质量赢得广大业主一致好评!
在此提醒:各位业主在选择上海装修公司的时候从口碑、设计、材料、施工、售后等方面进行对比,通过对比才能够了解哪家上海装修公司设计更加适合、施工质量更加靠谱、材料用得更好。
官方热线:021-5855-5551 ; 客服微信:w5258-com
宝山总部:沪太路2899弄36号(绿地科技中心)
电话:021-58555551 / 56775390 / 56996568
工程部:沪太路2899弄36号2楼
电话:021-66301538
易路荣昕公众号
(本预算计算面积为使用面积)
总费用:?元
材料费:?元
人工费:?元
设计费:?元
*稍候易路·荣昕客服将回电您,免费提供装修咨询服务
*因材料品牌及工程量不同,具体报价以量房实测为准
预约礼预约量房,量房费双倍返还
订单礼下单成功,减免2000元设计费
